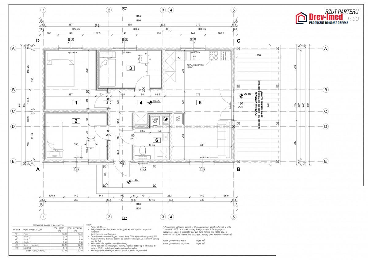
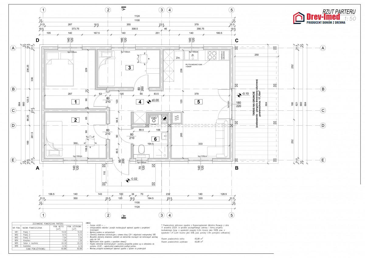
Opis budynku: LOZANNA - ZABUDOWA 72,60 + Zadaszenie 17 m2 / UŻYT. 60,88 m2
Dom mieszkalny jest wykonany z drewna świerkowego lub na zamówienie z drewna modrzewiowego. Jest bardzo dobrze ocieplony wełną Gullfiber. Od wewnątrz może być wykończony suchymi tynkami lub drewnem. Od zewnątrz posiada elewacje drewnianą lub termomur różnej grubości plus dodatkowe ocieplenie uzyskując statut domu energooszczędneo.
Opcje:
- Dom może być powiększony według potrzeb klienta.
- Dom może być wykonany w wersji bez ociepleń.
- Układ pomieszczeń można kształtować według własnych potrzeb.
- Cała konstrukcja domu z drewna iglastego - drewno czterostronnie strugane, sezonowane 6 lat i suszone.
- Impregnacja elementów konstrukcyjnych zabezpieczająca przed szkodnikami oraz ogniem.
- Okładzina zewnętrzna Płyta OSB - 12,5 mm
- Elewacja docieplona wełną elewacyjną twardą 100 mm + siatka + klej zatarte na szaro.
- Lub Elewacja docieplająca styropian 100 mm + siatka + klej zatarte na szaro.
- Tynka Akrylowy ( mineralny)kolory dowolne ) Lub elewacja biała.
- Elewacja - okładzina zewnętrzna drewniana w wybranych miejscach.
- Stolarka okienna PCV nisko emisyjna W/k 0,6 PAKIET 3 SZYBOWY kolor do ustalenia
- Stolarka drzwiowa zewnętrzna.
- Podłogi naturalne, drewniane - świerkowe lub sosnowe parter.
- Ocieplenie wełną GULFIBER 150/200/250mm lub ROCKWOOL lub KNAUF
- Wiatro i paroizolacje/ Ekranowa srebrna.
- Suche tynki wewnętrzne, PKG.
- Instalacja elektryczna.
- Instalacja wodna.
- Instalacja do C.O.
- Instalacja kanalizacyjna.
- Deskowanie dachu + 1x folia dachowa.
- Blachodachówka dowolny kolor i wzór/ Dachówka ceramiczna*
- Ściany działowe, przegrodowe.
- Komin z wkładem ceramicznym + wentylacja.
- Dokumentacja techniczna - 5 egzemplarze z opracowaniami branżowymi.
* OPCJA ZA DOPŁATĄ
Dodatki ponad standard:
- Okna balkonowe przesuwne *
- Rolety Pcv manualne / elektryczne na przełącznik kontaktowy/ lub pilot*
- Taras parterudeski tarasowe świerkowe , lub modrzewiowe* PERGOLE*
- Piec Gazowy DWU FUNKCYJNY / Co+ woda ciepła /
- Pompa ciepła / Fotovoltaika / rekuperacja / klimatyzacja / Kalkulację wykonuje Firma VieSSman.*
- Niezależne ogrzewanie gazowe z butli - Zbiorik LPG 2500L posadowionej obok domu, lub zbiornik zakopany w ziemi.*
- Każde z wymienionych źródeł grzewczych, można dostosować do podłóg podgrzewanych. (Wykonanie podłóg podgrzewanych + wylewkę mixokretem na styropianie - opcja do kalkulacji *
Firma dodatkowo może wykonać:
Fundament – ławy kopane na gł. 1.20 m do ziemi + wyrównanie pod wylewkę poziomu środka fundamentu + izolacja cieplna / styropian , styrodur / + wylewka do poziomu „0” ław fundamentowych + osadzenie wg szablonu kotew ø 12 stalowych do kotwienia domu + wykonanie izolacji poziome z papy pod budowę domu + instalacje wodne i kanalizacyjne.
Całość fundamentu jest wykonana zgodnie z projektem Architektonicznym wydanym przez firmę DREV-IMED.
Szanowni Państwo
Spotkania prosimy ustalać telefonicznie.
DREV-IMED
Biuro obsługa klienta:
43-300 Bielsko-Biała
ul. Krakowska 532
tel. +48 509-216-542
Ewelina Maślanka
tel. +48 509-216-542
biuro@drevimed.pl
drevimed1.ewelina@gmail.com
Godziny otwarcia:
Pn - Pt : od 10:00 do 16:00
Sobota : od 10:00 do 13:00
Niedziela: Nieczynne
Ekspozycja nr 1:
ul. Krakowska 532, Bielsko-Biała
tel. +48 509-216-542
Ekspozycja nr 2:
Szanowni Państwo
Oglądanie ekspozycji DREV-IMED jest możliwe po wcześniejszym umówieniu telefonicznym. Serdecznie zapraszamy do zapisywania się dzwoniąc pod nr telefonów lub wyślij SMS w treści wpisując " Ekspozycja TAK" , a skontaktujemy się Tel kom . Orange 509 216 542











