Opis budynku:
Dom mieszkalny jest wykonany z drewna świerkowego lub na zamówienie z drewna modrzewiowego. Jest bardzo dobrze ocieplony wełną Gullfiber. Od wewnątrz może być wykończony suchymi tynkami lub drewnem. Od zewnątrz posiada elewacje drewnianą lub termomur różnej grubości plus dodatkowe ocieplenie uzyskując statut domu Pasywnego.
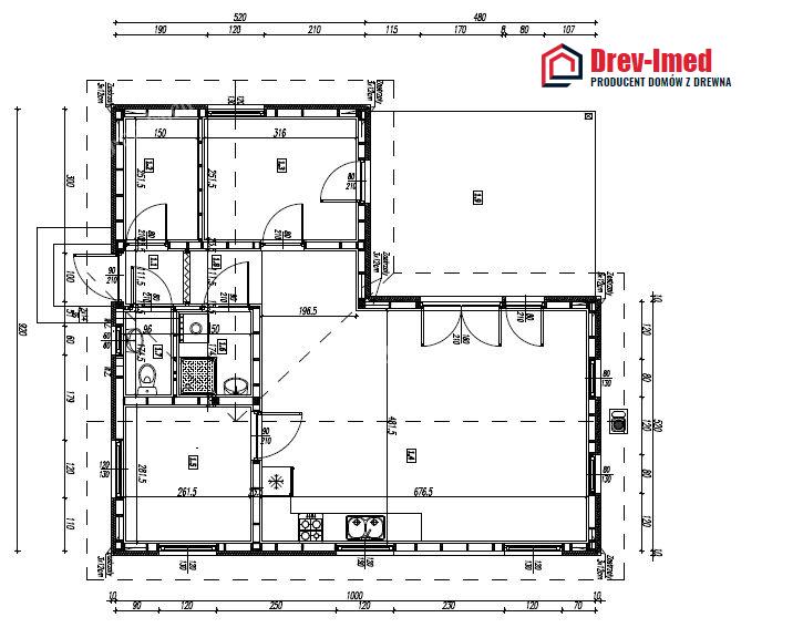
Opcje:
- Dom może być powiększony według potrzeb klienta o segmenty.
- Dom może być wykonany w wersji bez ociepleń(wersja letnia).
- Układ pomieszczeń można kształtować według własnych potrzeb.
- Cała konstrukcja domu z drewna iglastego - drewno czterostronnie strugane, sezonowane 6 lat i suszone.
- Impregnacja elementów konstrukcyjnych zabezpieczająca przed szkodnikami oraz ogniem.
- Okładzina zewnętrzna Płyta OSB - 12,5 mm
- Elewacja docieplona wełną elewacyjną twardą 50 mm lub 100 mm* + siatka + klej zatarte na szaro.
- Lub Elewacja docieplająca styropian 50 mm lub 100 mm* + siatka + klej zatarte na szaro.
- Tynka Akrylowy ( mineralny)kolory dowolne ) Lub elewacja biała.
- Elewacja - okładzina zewnętrzna drewniana w wybranych miejscach.
- Stolarka okienna PCV nisko emisyjna W/k 1,0 kolor do ustalenia
- Stolarka drzwiowa zewnętrzna.
- Stolarka drzwiowa wewnętrzna*
- Podłogi naturalne, drewniane - świerkowe lub sosnowe parter-poddasze (wysoka jakość).
- Ocieplenie wełną GULFIBER 150/200/250mm lub ROCKWOOL lub KNAUF
- Wiatro i paroizolacje/ Ekranowa srebrna.
- Suche tynki wewnętrzne, PKG.
- Instalacja elektryczna.
- Instalacja wodna.
- Instalacja C.O.
- Instalacja kanalizacyjna.
- Deskowanie dachu + 1x folia dachowa.
- Blachodachówka dowolny kolor i wzór/ Dachówka ceramiczna*.
- Klatka schodowa kompletna, świerkowa , sosnowa , dębowa.
- Ściany działowe, przegrodowe.
- Komin z wkładem ceramicznym + wentylacja.
- Dokumentacja techniczna - 4 egzemplarze z opracowaniami branżowymi.
- Piec węglowy - Tradycyjny do spalania różnego rodzaju opału - wszystkie gatunki węgla / wszystkie gatunki drewna / różnego rodzaju odpady palne*
- Grzejniki żebrowe malowane proszkowo, kolor biały z zaworami przepływowymi.*
- Piec Gazowy junkers. DWUFUNKCYJNY / Co+ woda ciepła / -zamiennik pieca węglowego.*
- Każde z wymienionych źródeł grzewczych, można dostosować do podłóg podgrzewanych.*
- Niezależne ogrzewanie gazowe z butli - Zbiorik LPG 2500L posadowionej obok domu, lub zbiornik zakopany w ziemi.*
-
* OPCJA ZA DOPŁATĄ
Firma dodatkowo może wykonać:
Fundament – ławy kopane na gł. 1.20 m do ziemi + wyrównanie pod wylewkę poziomu środka fundamentu + izolacja cieplna / styropian , styrodur / + wylewka do poziomu „0” ław fundamentowych + osadzenie wg szablonu kotew ø 12 stalowych do kotwienia domu + wykonanie izolacji poziome z papy pod budowę domu + instalacje wodne i kanalizacyjne + elektryczne – przejście pod ogrzewanie gazowe.
Całość fundamentu jest wykonana zgodnie z projektem Architektonicznym wydanym przez firmę DREV-IMED.
Szanowni Państwo
Spotkania prosimy ustalać telefonicznie.
DREV-IMED
Biuro obsługa klienta:
43-300 Bielsko-Biała
ul. Krakowska 532
tel. +48 509-216-542
Ewelina Maślanka
tel. +48 509-216-542
biuro@drevimed.pl
drevimed1.ewelina@gmail.com
Godziny otwarcia:
Pn - Pt : od 10:00 do 16:00
Sobota : od 10:00 do 13:00
Niedziela: Nieczynne
Ekspozycja nr 1:
ul. Krakowska 532, Bielsko-Biała
tel. +48 509-216-542
Ekspozycja nr 2:
Szanowni Państwo
Oglądanie ekspozycji DREV-IMED jest możliwe po wcześniejszym umówieniu telefonicznym. Serdecznie zapraszamy do zapisywania się dzwoniąc pod nr telefonów lub wyślij SMS w treści wpisując " Ekspozycja TAK" , a skontaktujemy się Tel kom . Orange 509 216 542













