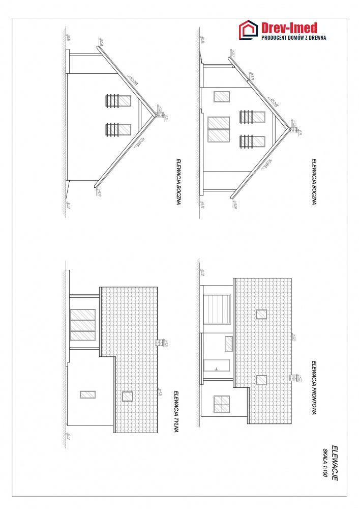
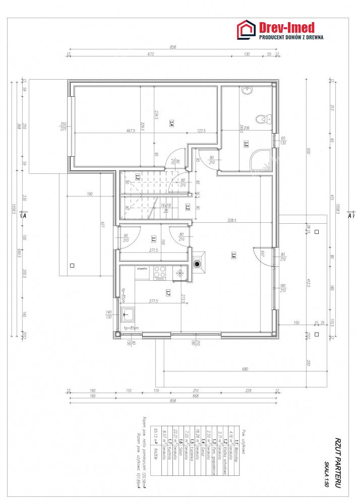
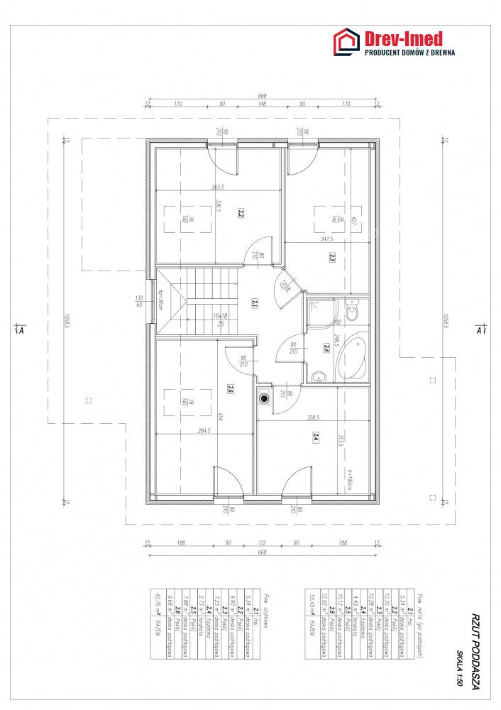
Opis budynku: KAROLINA ENERGO 120,00 m2
Opcje:
- Dom może być powiększonylub pomniejszany według potrzeb klienta .
- Możemy przestawiać sciany , okna itp: Projekt budowlany domu jest zawsze wykonywany pod klienta
- Dom może być wykonany w wersji stan deweloperski zamknięty , stan surowy zamknęty lub sama konstrukcja z poszyciem płytą OSB
- Układ pomieszczeń można kształtować według własnych potrzeb.
- Cała konstrukcja domu z drewna iglastego - drewno czterostronnie strugane, sezonowane 6 lat i suszone.
- Impregnacja elementów konstrukcyjnych zabezpieczająca przed szkodnikami oraz ogniem.
- Okładzina zewnętrzna Płyta OSB - 12,5 mm
- Elewacja docieplona wełną elewacyjną twardą 50 mm lub 100* mm + siatka + klej zatarte na szaro.
- Lub Elewacja docieplająca styropian 100 mm + siatka + klej zatarte na szaro.
- Tynka Armasil BIAŁY / kolory dowolne
- Elewacja - okładzina zewnętrzna drewniana w wybranych miejscach.
- Stolarka okienna PCV nisko emisyjna sześciokomorowa pakiet 3 szyby kolor do ustalenia
- Stolarka drzwiowa zewnętrzna.
- Stolarka drzwiowa wewnętrzna*
- Podłogi naturalne, drewniane - świerkowe lub sosnowe parter/ lub inne
- Ocieplenie wełną GULFIBER 150/200/250mm lub ROCKWOOL lub KNAUF
- Wiatro i paroizolacje/ Ekranowa srebrna.
- Suche tynki wewnętrzne, PKG.
- Instalacja elektryczna.
- Instalacja wodna.
- Instalacja do C.O.
- Instalacja kanalizacyjna.
- Deskowanie dachu + 1x folia dachowa.
- Blacha trapezowa dowolny kolor i wzór,
- Ściany działowe, przegrodowe.
- Komin z wkładem ceramicznym + wentylacja.
- Dokumentacja techniczna - 5 egzemplarze z opracowaniami branżowymi.
- Pompa ciepła / rekuperacja / *
- Piec Gazowy junkers. DWUFUNKCYJNY / Co+ woda ciepła / *
- Każde z wymienionych źródeł grzewczych, można dostosować do podłóg podgrzewanych.*
- Niezależne ogrzewanie gazowe z butli - Zbiorik LPG 2500L posadowionej obok domu, lub zbiornik zakopany w ziemi.*
* OPCJA ZA DOPŁATĄ
Firma dodatkowo może wykonać:
Fundament – ławy kopane na gł. 1.20 m do ziemi + wyrównanie pod wylewkę poziomu środka fundamentu + izolacja cieplna / styropian , styrodur / osadzenie wg szablonu kotew ø 12 stalowych do kotwienia domu + wykonanie izolacji poziome z papy pod budowę domu + instalacje wodne i kanalizacyjne + elektryczne – przejście pod ogrzewanie gazowe.
Całość fundamentu jest wykonana zgodnie z projektem Architektonicznym wydanym przez firmę DREV-IMED.
Szanowni Państwo
Spotkania prosimy ustalać telefonicznie.
DREV-IMED
Biuro obsługa klienta:
43-300 Bielsko-Biała
ul. Krakowska 532
tel. +48 509-216-542
Ewelina Maślanka
tel. +48 509-216-542
biuro@drevimed.pl
drevimed1.ewelina@gmail.com
Godziny otwarcia:
Pn - Pt : od 10:00 do 16:00
Sobota : od 10:00 do 13:00
Niedziela: Nieczynne
Ekspozycja nr 1:
ul. Krakowska 532, Bielsko-Biała
tel. +48 509-216-542
Ekspozycja nr 2:
Szanowni Państwo
Oglądanie ekspozycji DREV-IMED jest możliwe po wcześniejszym umówieniu telefonicznym. Serdecznie zapraszamy do zapisywania się dzwoniąc pod nr telefonów lub wyślij SMS w treści wpisując " Ekspozycja TAK" , a skontaktujemy się Tel kom . Orange 509 216 542
































