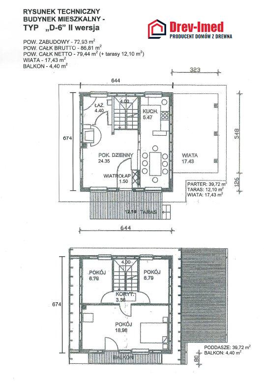
Popis budovy:
Obytný dom vykonaný zo smrekového dreva, alebo na objednávku zo smrekovcového dreva. Je veľmi dobre zateplený vlnou Gullfiber. Z vnútra môže mať steny alebo zo sadrokartónu alebo z dreva. Z vonku má drevenú fasádu alebo termomúr rôznej hrúbky s dodatočným zateplením, vďaka čomu spĺňa parametre pasívneho domu.
Možnosti:
- Dom sa môže zväčšiť o segmenty podľa očakávaní zákazníka.
- Dom môže byť vykonaný vo verzii bez zateplenia (letná verzia).
- Rozmiestnenie jednotlivých miestností sa môže realizovať podľa očakávaní zákazníka.
Štandardná cena zahŕňa:
- Kompletnú konštrukciu domu.
- Vonkajší obklad termomúr + polystyrén + mriežka + malta zatreté nasivo; alebo tvrdá fasádna vlna alebo ekorohož alebo drevený vonkajší obklad.
- PVC okná, farba dohodou, nízka tepelná priepustnosť W/k 1,1.
- Vonkajšie aj vnútorné dvere.
- Konštrukčné drevené podlahy na prízemí a poschodí
- Zateplenie vlnou GULFIBER 150/200mm alebo ROCKWOOL alebo KNAUF
- Izolácia proti vetu a paroizolácia.
- Suché vnútorné steny, sadrokartón.
- Elektrické rozvody.
- Vodoinštalácia.
- Centrálne vykurovanie.
- Kanalizácia.
- Impregnácia konštrukčných elementov domu zabezpečujúca proti škodcom a ohňu.
- Strešný plášť + 1x asfaltový pás alebo plechová krytina.
- Kompletné schodisko.
- Priečky.
- Biela akrylátová omietka, Fasáda
- Komín z keramickou vložkou
- Pec na pevné palivo – tradičná, spaľovanie rôzneho paliva – všetky druhy uhlia / všetky druhy dreva / rôzne druhy odpadu vhodného na spaľovanie
- Rebríkové radiátory, práškovo maľované, biela farba, termostatické hlavice.
- Plynová pec. DVOJFUNKČNÁ / centrálne vykurovanie + teplá voda / -namiesto peci na pevné palivo/
- Každý z týchto zdrojov tepla sa môže používať s podlahovým kúrením.
Firma môže dodatočne zrealizovať:
Firma Drev-imed odporúča, aby základ vykonala firma, nakoľko je veľmi dôležité, aby bol vykonaný presne a dôkladne. Základy musia byť presne vymerané a povrch presne vodorovný. Rovnako musia byť rozmiestnené na presne určených miestach oceľové kotvy slúžiace na upevnenie domu k základu. Rovnako presne musí byť vykonaný betónový základ pod komín, presnosť veľmi je dôležité vzhľadom na to, že komín sa nesmie dotýkať stropných trámov a krokiev strešnej konštrukcie. Musí byť umiestnený presne v strede segmentov konštrukcie domu. Preto firma Drev-imed tieto práce vykonáva s príslušnou presnosťou. V prípade, že dom bude postavený na základoch, ktoré vykonal investor – na vlastné náklady, alebo ich realizovala iná firma, ktoré nemá potrebné znalosti a skúsenosti s realizáciou takýchto stavieb, v takomto prípade investor je zodpovedný za realizáciu celej stavby domu.
Ústredie
34-322 Rychwałd
ul. Beskidzka 111
Kancelária:
tel. +48 509-216-542
Ewelina Maślanka
tel. +48 509-216-542
biuro@drevimed.pl
Małgorzata Kosacka
tel. +48 509-216-541
drevimed.malgorzata@gmail.com
OTVÁRACIE HODINY:
Po – Pia: 10:00 - 16:00
Sobota : 10:00 - 13:00
Nedeľa: Zatvorené
Výstava č. 1:
ul. Krakowska 532, Bielsko-Biała
tel. +48 509-216-542
tel. +48 509-216-541
biuro@drevimed.pl
drevimed.malgorzata@gmail.com
Výstava č. 2:
ul. Łucka, 21 100 Lubartów / k Lublina
tel. +48 509 216 541
Dámy a páni
Prehliadka výstavy DREV-IMED je možná po predchádzajúcej telefonickej dohode. Srdečne Vás pozývame, aby ste sa prihlásili zavolaním na telefónne čísloóalebo pošlite SMS v obsahu zadaním " Výstava ÁNO" a my Vás budeme kontaktovať Tel. Orange 509 216 542 , 509 216 541














